Centre Hospitalier
Vaison La-Romaine (84)

  • Home
  • Centre Hospitalier
    Vaison La-Romaine (84)

Centre hospitalier

Vaison-La-Romaine (84)

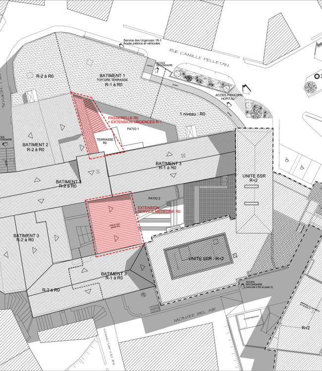
Restructuration, Réhabilitation et Réorganisation Générale par : l’extension du Service Médecine, extension du Service des Urgences, création d’une Unité d’Hospitalisation de jour et bureaux, etc…

  • Maître d’ouvrage : Citadis pour le Centre Hospitalier de Vaison-La-Romaine (84)
  • Niveau de participation : MOE complète – ARCHITECTE MANDATAIRE
  • Surface : 2 700 m² DE SURFACE RéHABILITéE
  • Enveloppe travaux : 3 846 500 € HT
  • avancement : PROJET Réalisé – LIVRAISON JUILLET 2017