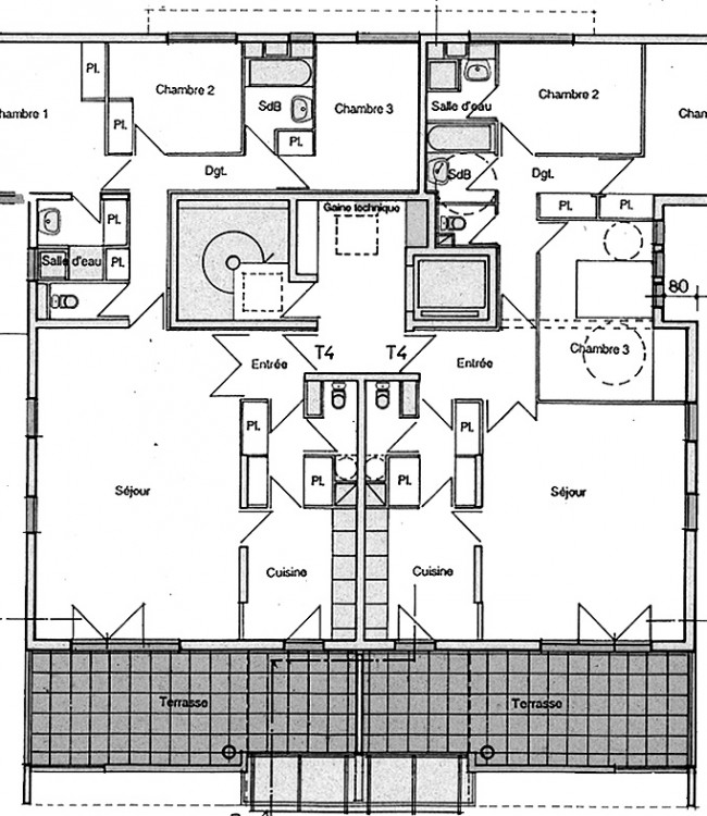
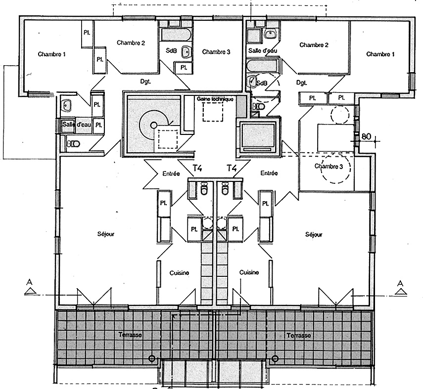
« Les Charmilles de la Torse » – 16 logements
Aix-en-Provence (13)

  • Home
  • « Les Charmilles de la Torse » – 16 logements
    Aix-en-Provence (13)

« Les Charmilles de la Torse »- 16 LOGEMENTS  

AIX-EN-PROVENCE (13)

Construction de 16 logements en accession

  • Maître d’ouvrage : H.D.I.
  • Niveau de participation : Conception – Maîtrise d’œuvre
  • Surface : 1 269 m²
  • Enveloppe travaux : 1 735 600€ HT
  • Phases d’étude: Projet réalisé en 1999, livré en 2000