« Résidence les Géraniums »
Construction de 47 logements
Marseille (13)

  • Home
  • « Résidence les Géraniums »
    Construction de 47 logements
    Marseille (13)

« Résidence les Géraniums » 

Construction de 47 logements

Marseille (13)

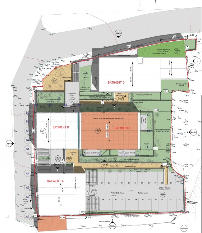
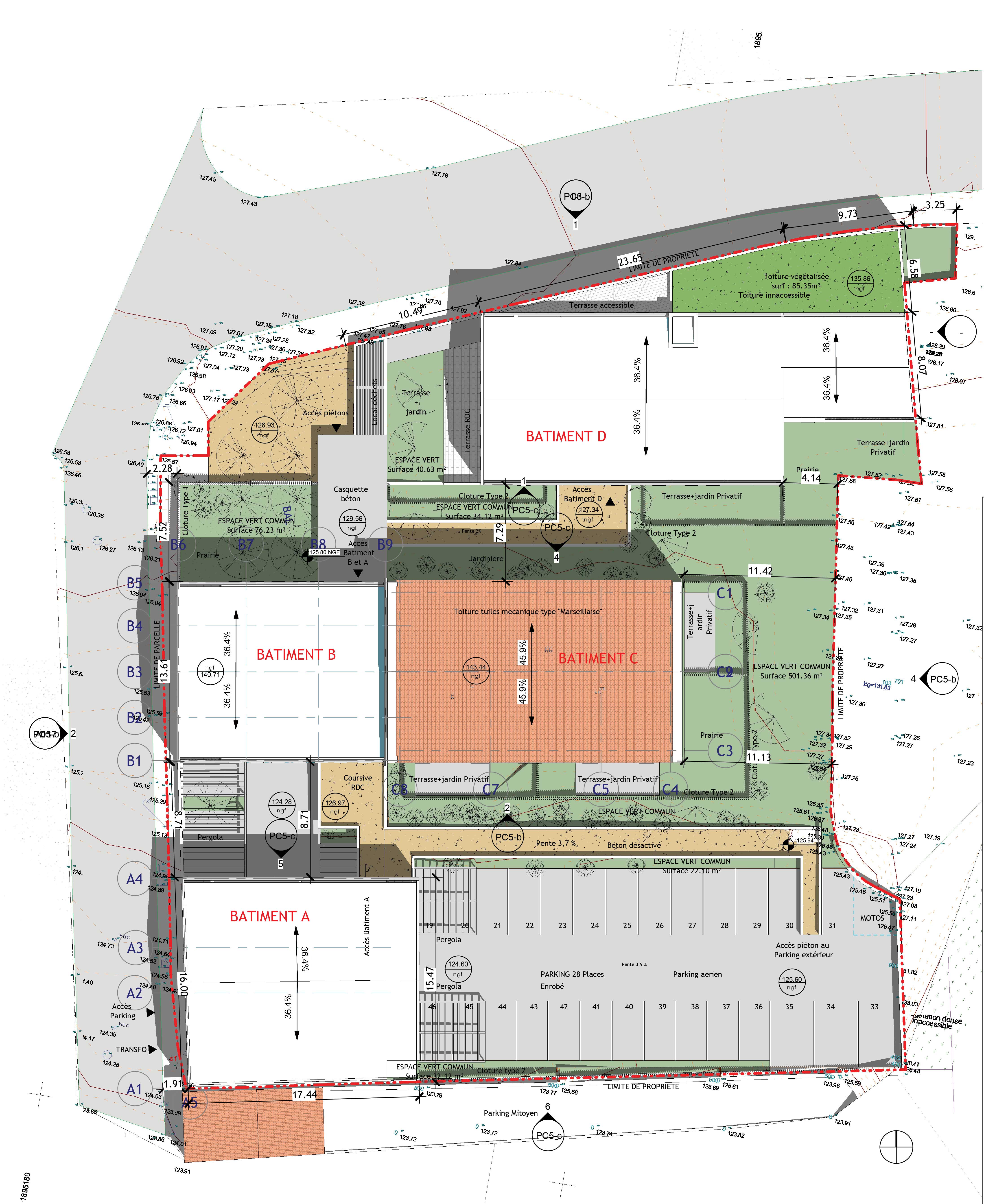
Démolition d’un ancien Entrepôt et Réhabilitation d’un Bâtiment dit « Le Moulin » noté au Patrimoine remarquable pour la réalisation de 47 logements 

  • Maître d’ouvrage :  Grand delta habitat
  • Niveau de participation : Maîtrise d’Œuvre complète – Architecte mandataire
  • Surface : 3 380 m²
  • Estimation prévisionnelle : 5 000 000 € HT
  • AVANCEMENT : livré dÉcembre 2023